中古一戸建て NEW
この物件は4人の方が見ています

群馬県館林市高根町

1,220万円
50坪以上 4LDK以上 接道6m以上 上下水道完備

■東武伊勢崎線「多田良」駅・・・・・・・約1,400m 徒歩18分
■第八小学校・・・・・・・・・・・・・・約550m  徒歩7分
■多々良中学校・・・・・・・・・・・・・約1,000m 徒歩13分
■ビバホーム館林店・・・・・・・・・・・約450m  徒歩6分
■セブンイレブン館林高根町店・・・・・・約950m  徒歩12分
■館林厚生病院・・・・・・・・・・・・・約2,900m 車8分

物件概要

所在地 群馬県館林市高根町 価格 1,220 万円
交通

東武伊勢崎線 多々良駅 まで 徒歩18分

土地権利 所有権
接道状況 北東側 公道6m
小学校区 中学校区
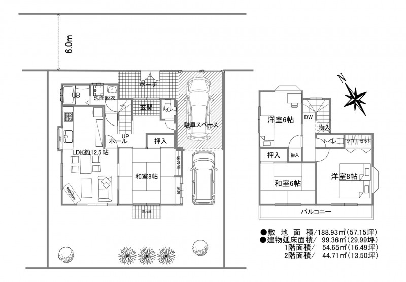
間取り 4LDK 築年数 1996年(平成8)2 月
土地面積 公簿 188.93㎡(57.15坪) 建物面積 99.36㎡ (30.05坪)
地目 宅地 私道負担 なし
都市計画 市街化区域 用途地域 1種低層
建ぺい率 40% 容積率 80%
上水道 公共 下水道 公共
ガス プロパン集中 現況
構造および階数 木造 地上2階建 駐車場 普通2台
取引態様 仲介 明渡 即時
建築確認番号 第4259号
設備・条件 側溝、システムキッチン、洗浄便座、追い炊き、トイレ2箇所
備考 ※駐車スペースについては縦列による駐車可(車種によります)
※契約不適合責任免責 現況でのお引渡し
※境界一部不明
■確定測量など各諸条件ご相談可能です。
・市立第八小学校   徒歩7分
・市立多々良中学校  徒歩13分
不動産用語集

弊社では、売主様に配慮し、物件所在地を掲載していない物件がございます。
詳細については、お気軽にお問合せください。

(物件番号: 3008225)

【更新年月日】2026年04月27日 【次回更新日】2026年05月27日

周辺地図を確認する

ログイン LOGIN

メールアドレス
パスワード

パスワードを忘れた方はこちら

久喜市・加須市の
不動産売買情報

HPを見たと言ってお気軽にお問い合わせください

無料相談・お電話窓口

0800-800-7511

営業時間:9:45~18:00 / 定休日:火曜日・水曜日

株式会社ヒノキヤグループ

埼玉県久喜市上町3番4号