新築一戸建て NEW
この物件は3人の方が見ています

加須市花崎北3丁目

2,380万円
駐車場2台可 上下水道完備 新築戸建て特集

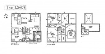
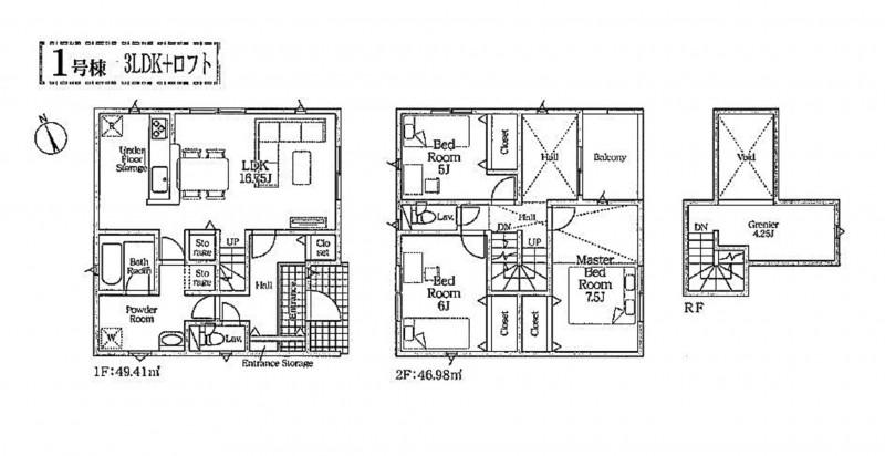
・新築戸建て2階建て+小屋浦収納!カースペース2台分!
・インナーバルコニーで雨の日でも安心!(^^)!
・小学校スーパー至近!嬉しい間取♪駅徒歩13分地震に強い家
・未完成に付き同メーカーの完成物件内見可能、お問い合わせは今すぐに!

・カスミ:徒歩3分(200m)
・セキ:徒歩12分(900m)
・ビバモール:徒歩29分(2300m)

物件概要

所在地 加須市花崎北3丁目 価格 2,380 万円
交通

東武伊勢崎線 花崎駅 まで 徒歩13分

土地権利 所有権
小学校区 花崎北 (240m) 中学校区 加須東 (1190m)
間取り 3SLDK 築年数 2025年(令和7)12 月 完成予定
土地面積 公簿 158.10㎡(47.82坪) 建物面積 96.39㎡ (29.15坪)
地目 宅地 私道負担
都市計画 市街化区域 用途地域 1種中高
建ぺい率 60% 容積率 200%
上水道 公共 下水道 公共
ガス プロパン個別 現況 建築中
構造 木造 駐車場 2台
取引態様 仲介 明渡 相談
設備・条件 システムキッチン、カウンターキッチン、シャンプードレッサー、浴室乾燥機、モニタ付インターホン、洗浄便座、複層ガラス、追い炊き、駐車場2台分、トイレ2箇所
備考 *司法書士売主指定
不動産用語集

弊社では、売主様に配慮し、物件所在地を掲載していない物件がございます。
詳細については、お気軽にお問合せください。

(物件番号: 3006988)

【更新年月日】2025年10月04日 【次回更新日】2025年11月04日

周辺地図を確認する

ログイン LOGIN

メールアドレス
パスワード

パスワードを忘れた方はこちら

久喜市・加須市の不動産売買情報

HPを見たと言ってお気軽にお問い合わせください

無料相談・お電話窓口

0800-800-7511

営業時間:9:45~18:00 / 定休日:火曜日・水曜日

株式会社ヒノキヤグループ まいすまいカンパニー

埼玉県久喜市上町3番4号