新築一戸建て NEW
この物件は14人の方が見ています

久喜市伊坂南1丁目

3,099万円
南向き 駅徒歩10分以内

◆JR宇都宮線「栗橋」駅・・・・・・徒歩8分
◆敷地36坪以上
※ランドリースペース

◆栗橋小学校・・・・・・・約1200m(徒歩15分)
◆栗橋東中学校・・・・・・約1800m(徒歩22分)
◆ドラッグセキ・・・・・・約53m(徒歩1分)
◆マミーマート・・・・・・約200m(徒歩3分)
◆デイリーヤマザキ・・・・約550m(徒歩7分)

物件概要

所在地 久喜市伊坂南1丁目 価格 3,099 万円
交通

JR宇都宮線 栗橋駅 まで 徒歩8分

土地権利 所有権
小学校区 栗橋 (1200m) 中学校区 栗橋東 (1800m)
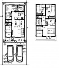
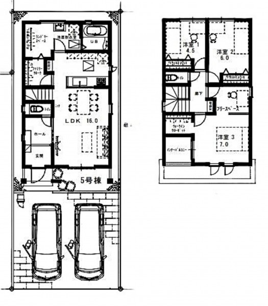
間取り 3LDK 築年数 2026年(令和8)4 月 完成予定
土地面積 公簿 120.16㎡(36.34坪) 建物面積 99.36㎡ (30.05坪)
地目 私道負担 なし
都市計画 市街化区域 用途地域 1種中高
建ぺい率 60% 容積率 150%
上水道 公共 下水道 浄化槽個別
ガス 都市ガス 現況 建築中
構造 木造 駐車場 2台
取引態様 仲介 明渡 相談
設備・条件 側溝、システムキッチン、カウンターキッチン、シャンプードレッサー、浴室乾燥機、モニタ付インターホン、洗浄便座、Wクロゼット、複層ガラス、駐車場2台分、トイレ2箇所
備考 *司法書士売主指定
不動産用語集

弊社では、売主様に配慮し、物件所在地を掲載していない物件がございます。
詳細については、お気軽にお問合せください。

(物件番号: 3007474)

【更新年月日】2025年12月12日 【次回更新日】2026年01月12日

周辺地図を確認する

ログイン LOGIN

メールアドレス
パスワード

パスワードを忘れた方はこちら

久喜市・加須市の不動産売買情報

HPを見たと言ってお気軽にお問い合わせください

無料相談・お電話窓口

0800-800-7511

営業時間:9:45~18:00 / 定休日:火曜日・水曜日

株式会社ヒノキヤグループ まいすまいカンパニー

埼玉県久喜市上町3番4号